ypv f05ee9fd16 init hai 1 ano
..
Screen f05ee9fd16 init hai 1 ano
readme.md f05ee9fd16 init hai 1 ano

readme.md

Поставленные технические задачи:

  1. Обеспечить безопасность внутри помещения;
  2. Обеспечить безопасность территории вокруг здания;
  3. Бюджетное оборудование;

Система видеонаблюдения для детского сада включает в себя:

Камеры: Камеры для внутреннего или наружного использования с хорошим разрешением, такие как Hikvision DS-2CC112P-IR3

Рекордер (NVR): Для хранения и управления видеофайлами, требуется NVR с достаточной емкостью хранения, такие как Hikvision DS-7608NI-K2, а также потребуются жесткие диски как минимум 4 шт. по 4 тб.

Сетевой коммутатор: Для подключения камер и NVR требуется сетевой коммутатор Hikvision DS-3E0508-E(B)

Кабели: Для передачи данных между камерами и NVR, требуются кабели, такие как:

  • патч-корд (около 100м) (1000руб. -5000руб.);

Мониторы или ПК: Для просмотра видео и управления системой может потребоваться: 27" Монитор Xiaomi Mi Desktop Monitor

Программное обеспечение: Для удобного просмотра и управления системой видеонаблюдения может потребоваться дополнительное программное обеспечение, вроде:

  • SADP - сетевой сканер. Скачать
  • BatchConfigTool - утилита для пакетной настройки. Скачать

  • Remote Backup - утилита для резервного копирования архива. Скачать

Итоговая стоимость оборудования:

Камера наружнего наблюдения Hikvision DS-2CC112P-IR3 (х8): 1шт - 5.800руб. Купить

1

Камера внутреннего наблюдения IP камера Xiaomi Smart Camera PTZ Version 2K White (MJSXJ09CM) (х6): 1 шт - 2850руб. Купить

1.2

Рекордер Hikvision DS-7608NI-K2 (х1): 1шт - 12.399руб. Купить

2

Коммутатор Hikvision DS-3E0508-E(B) (х1): 1шт - 3.299руб. Купить

3

Монитор Xiaomi Mi Desktop Monitor (x1): 1шт - 13.049руб. Купить

4 ТБ Жесткий диск Seagate SkyHawk ST4000VX016: 1шт - 6.699руб. Купить

Итого: 119.043руб.

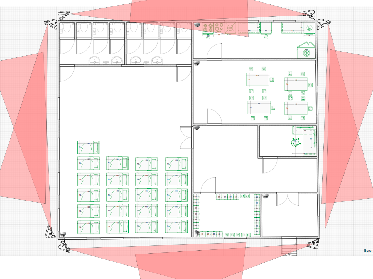
План расстановки видеонаблюдения.

5

Вывод:

В результате анализа системы видеонаблюдения можно сделать вывод, что это важный инструмент для обеспечения безопасности и контроля. С помощью видеонаблюдения мы сможем улавливать и предотвращать преступления, а также следить за порядком и безопасностью.

Наши уличные камеры имеют угол обзора - 22.8 градуса и дальность подсветки 40м., а внутренние камеры имеют угол обзора в 360 градусов - таким образом мы можем обеспечить полное видеонаблюдение нашего детского садика, мы будем видеть всё здание под разными углами, а также прилегающую территорию.