# Лабораторная работа № 4
Пожарная и охранная сигнализация. Датчики, алгоритмы срабатывания. Освещение. Виды освещения
# Содержание
1. Введение;
2. Пожарная и охранная сигнализация;
3. Датчики, алгоритмы срабатывания;
4. Реализация на практике;
5. Освещение. Виды освещения;
6. Реализация на практике;
7. Заключение;
8. Список используемой литературы.
# Введение
Охрана любого объекта включает в себя защиту зданий и помещений от незаконного проникновения извне. Целью создания системы охранной сигнализации (ОС) является максимально раннее выявление попыток проникновения в защищаемые помещения. Второй, дополнительной функцией ОС является сдерживание, т.е. непрофессиональный нарушитель, увидев оборудованные системой охраны помещения, скорее всего, воздержится от вторжения.
Не менее важной составляющей обеспечения безопасности зданий и помещений является защита людей и имущества от пожара. Эту задачу в системах безопасности выполняет подсистема пожарной сигнализации (ПС), которая работает в автоматическом режиме и выдает сигнал тревоги при обнаружении различных признаков пожара, таких, как повышенная температура в помещении, задымленность, наличие открытого огня. Монтаж системы автоматической пожарной сигнализации является обязательным для большинства зданий и помещений. Требования по оснащению объектов системами ПС регламентируется государственными документами – Сводами правил пожарной безопасности.
Структура и алгоритмы работы систем охранной и пожарной сигнализаций схожи между собой, поэтому их часто объединяют в одну систему охранно-пожарной сигнализации.
# Пожарная и охранная сигнализация
**Система охранно-пожарной сигнализации** представляет собой комплекс технических средств, служащих для своевременного обнаружения возгорания и несанкционированного проникновения в охраняемую зону (Рисунок 1). В зависимости от масштаба задач, которые решает охранно-пожарная сигнализация, в ее состав входит оборудование трех основных категорий:
1. **Оборудование централизованного управления** охранно-пожарной сигнализацией. Например, центральный компьютер с установленным на нем ПО для управления сигнализацией, в небольших системах охранно-пожарной сигнализации задачи централизованного управления выполняет охранно- пожарная панель;
2. **Оборудование сбора и обработки информации с датчиков** охранно-пожарной сигнализации: приборы приемно-контрольные охранно-пожарные (панели);
3. **Сенсорные устройства** – датчики и извещатели охранно-пожарной сигнализации.

В больших комплексах безопасности системы охранной и пожарной сигнализации контролируются независимыми друг от друга постами управления, сохраняющими автономность в составе единой системы охранно-пожарной сигнализации. На небольших объектах охранно-пожарная сигнализация управляется непосредственно приемно-контрольными приборами.
Приемно-контрольный прибор осуществляет питание охранных и пожарных извещателей по шлейфам (линиям) сигнализации, прием тревожных извещений от извещателей, формирует тревожные сообщения, а также передает их на станцию централизованного наблюдения и формирует сигналы тревоги на срабатывание других систем.
# Датчики, алгоритмы срабатывания
## Типы датчиков охранной сигнализации
Для получения информации о тревожной ситуации на объекте в состав охранно-пожарной сигнализации входят датчики, или извещатели, отличающиеся друг от друга типом контролируемого физического параметра, принципом действия чувствительного элемента, способом передачи информации на центральный пульт управления сигнализацией. По принципу формирования информационного сигнала о проникновении на объект извещатели охранной сигнализации делятся на активные и пассивные.
- Активные извещатели генерируют в охраняемой зоне сигнал и реагируют на изменение его параметров;
- Пассивные извещатели реагируют на изменение параметров окружающей среды, вызванное вторжением нарушителя.
Каждая система охранной сигнализации использует охранные извещатели, контролирующие различные физические параметры. Широко используются такие типы охранных извещателей, как инфракрасные пассивные детекторы движения, магнитоконтактные извещатели, извещатели разбития стекла, оптические активные извещатели, работающие на пересечение светового луча, а также ручные извещатели для подачи сигнала тревоги человеком – тревожные кнопки.
Системы охранной сигнализации могут быть адресными или неадресными (традиционными). В неадресных системах извещатели имеют фиксированный порог чувствительности, при этом группа извещателей включается в общий шлейф охранной сигнализации, в котором в случае срабатывания одного из извещателей формируется обобщенный сигнал тревоги. Адресные системы отличаются наличием в сообщении датчика информации о его адресе, что позволяет определить место нарушения с точностью до места расположения извещателя.
Каждый тип извещателей имеет свой перечень основных технических характеристик, определяемых соответствующими стандартами. В то же время, даже однотипные извещатели имеют отличия в конструктивных особенностях составных частей, удобстве эксплуатации, надежности, уровне дизайна, что учитывается при выборе того или иного прибора или фирмы–производителя.
## Типы датчиков пожарной сигнализации
В системах пожарной сигнализации применяются тепловые, дымовые, световые и ручные извещатели. В соответствии с названием, каждый вид извещателя использует для работы один из возможных факторов пожара – тепло, дым, световое излучение открытого пламени. Ручные извещатели служат для подачи сигнала пожарной тревоги персоналом объекта, обнаружившим возгорание раньше, чем сработают автоматические пожарные извещатели. Установка ручных извещателей в зданиях и помещениях является обязательной и регламентируется правилами пожарной безопасности.

В зависимости от способов выявления тревог и формирования сигналов, извещатели и системы пожарной сигнализации делятся на **неадресные**, **адресные**, а также на **пороговые** и **аналоговые**.
**Пороговые извещатели** формируют сигнал тревоги при превышении регистрируемого сигнала над некоторым уровнем (порогом), который задается при изготовлении извещателя. Например, при задымлении в помещении извещатель сработает, когда засветка чувствительного элемента светом, отраженным от частиц дыма, достигнет определенной величины. В аналоговых системах извещатель передает прибору информацию об уровне сигнала датчика, решение о пожаре в таких системах принимает прибор сигнализации, а не извещатель.
**В неадресных системах извещатели** включаются в общую линию (шлейф) пожарной сигнализации, один такой шлейф может контролировать несколько помещений. При срабатывании одного из извещателей в шлейфе невозможно определить, в каком помещении возник пожар.
**В адресных системах** каждый извещатель вместе с сообщением о тревоге передает приемно-контрольному прибору свой номер (адрес), поэтому оператор, помимо тревожного сигнала, получает информацию о точном месте возгорания.
**Адресно-аналоговая пожарная сигнализация** является наиболее информативной и развитой. В такой системе применяются извещатели, которые передают текущие значения контролируемого параметра вместе с адресом по шлейфу сигнализации. Такой способ мониторинга используется для раннего обнаружения пожара, а также получения данных о необходимости технического обслуживания датчиков вследствие загрязнения или других факторов. Кроме этого, адресно-аналоговые системы позволяют, не прерывая работу пожарной сигнализации, программно изменять порог чувствительности извещателей, при необходимости их адаптации к условиям эксплуатации на объекте.

## Алгоритмы срабатывания
Любая охранная система от пожаров включает в свой состав несколько функциональных устройств, обеспечивающих реализацию возложенных на нее задач. К ним относятся:
- пожарные датчики, которые реагируют на повышение температуры в помещении, появление очагов открытого пламени, наличия дыма;
- внешние устройства в виде звуковых сирен, световых излучателей, исполнительных механизмов, узлов управления автономной системой пожаротушения;
- электронный модуль, который получает от датчиков сигнал, обрабатывает его по предустановленному алгоритму и выдает сигнал тревоги на системы предупреждения, на центральный пульт пожарной охраны и на исполнительные устройства, которые обеспечивают оповещение и эвакуацию персонала, а также автономное тушение пожара с помощью встроенной системы пожаротушения;
- релейные модули, которые связывают электронный блок управления с исполнительными механизмами.
Алгоритм сработки пожарной сигнализации в предложенной конфигурации предусматривает следующее:
- один из датчиков выявляет в контролируемой зоне фактор, который является для него причиной срабатывания (высокая температура, дым, открытый огонь);
- сработавший датчик передает сигнал к электронному блоку, который после его анализа принимает решение о выдаче сигнала тревоги, который транслируется средствами звукового и светового оповещения, передается на пульт службы, а также используется для запуска исполнительных устройств автономных систем пожаротушения.
Зачастую ложное срабатывание случается из-за некорректной работы одного из пожарных датчиков-извещателей.
Чтобы определить действительную причину, по которой произошло срабатывание сигнализации, в ее составе используются специальные электронные блоки, которыми проводится регистрация срабатываний автоматической пожарной сигнализации.
Выполнив анализ параметров всех датчиков в момент срабатывания, можно определить причину неправильного срабатывания и устранить ее.
# Реализация на практике
[Ссылка на хороший источник с информацией (по пожарной и охранной системе), по принципу работы, установки и т.д.](https://hqsignal.ru/defence/s/princip-raboty-pozharnoj.html)
## План объекта
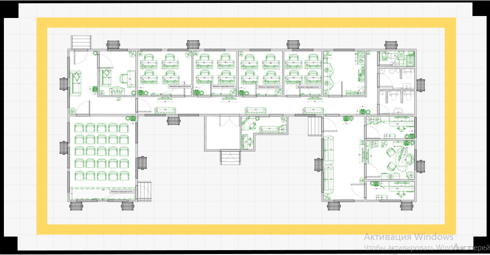
Наш объект имеет один этаж, насчитывается порядка 11 рабочих зон, не считая подсобные помещения, туалеты и коридоры. Отдельно выделенное помещение для охраны ЧОП. Имеется 4 входа и выхода.

Все названия помещений вы можете увидеть на картинке 2.

Рассмотрим обстановку внутри, чтобы визуально понимать, где что находится.

Итак, на данный момент мы имеем полность пустой объект, наша задача обезопасить его, наши возможности в финансовом плане безграничны.
## Размещение пожарной сигнализации
Начнем с готового решения которое нам предлагает **[Экспертный центр НОР]()**.
Цена включая работу составит **151 800 рублей**

**Рассмотрим свой вариант размещения пожарной сигнализации.**
Любые виды систем охранно-пожарных сигнализаций состоят из следующих элементов:
- Извещатели (датчики);
- Приемно-контрольная аппаратура (ППК, ПКУ);
- Устройства оповещения;
- Линии связи (шлейфовые, радиоканальные, интернет, GSM—GPRS);
- Резервное автономное электропитание (аккумуляторный, бензиновый или дизельный - генератор);
- Иные периферийные устройства;
- Программное обеспечение.
Отобразим на плане, где будут находится датчики пожарной сигнализации.

**Всего датчиков 29 штук.**
Выбор был сделан в пользу датчик пожарного дыма и тепла радиоканальный **[Ps-link WHS10](https://rusmarta.ru/market/signalizatsii/datchiki-pozharnoj-signalizacii/datchiki-dyma-i-tepla/sensor-smoke-ps-link-whs101/?utm_source=Яндекс%20Директ&utm_medium=Умный%20дом&utm_campaign=ВГК%20%2F%20ТК%20%2F%20НБ%20%2F%2015.02&utm_content=premium.1.none&utm_term=RM&_openstat=ZGlyZWN0LnlhbmRleC5ydTs4MzMxNjQwNDsxMzUwMzU4NDQyNzt5YW5kZXgucnU6cHJlbWl1bQ&yclid=1688547000883871743)**. Цена за 1 будет составлять **1 189 рублей.** Всего получается **34 481 рублей**.
**[Охранно-пожарный прибор Болид С2000М]()**. Цена будет составлять **15 500 рублей**.

**[Соната-Т-Л-100-5/3Вт речевой оповещатель Арсенал Безопасности](https://market.yandex.ru/product--sonata-t-l-100-5-3vt-rechevoi-opoveshchatel-arsenal-bezopasnosti/992258641?cpc=hDDxPGoBpTctjx7ZyL0F7f3oh0Xv06K5JJJkAlFvdWtPvA-llpd8X8hPbd7Nzd7DEsCBIg3GKpZuHXUG6sqTvPX-REmuKuocOd2r3kB5wpXh_Rh_GAqmL7bOs5szfGCYUpNNYrnIYySlkmYeSAj8jJuETBc_D6Zk-HmZsDEDehpa6ZtmBUtwrKPkE7JrnsqyyhqS5EbLJGw%2C&sku=101359451467&offerid=exXli52QOTEeV-C8SaJoog&cpa=1).** Цена за 1 штуку **2113 рублей.** Всего нам понадобиться 16 штук. Цена за все составит **33 808 рублей.**

**[Усилитель трансляционный зональный LAudio LAM6120](https://market.yandex.ru/product--usilitel-transliatsionnyi-zonalnyi-laudio-lam6120/1408428431?text=усилитель%20трансляционный%20для%20пожарной%20сигнализации&cpc=eaZ54uG8hB8i_J_aRZQftkHGmwunOLlx3uCEWC9l1fOX3SjC_53CKgXgWYm1yPlEIoI_LyvmQaHqGLXtaKSdjlOHCIArJco3q8optMgpX8_0w-u2RmSv8JLqfxD5Zh5Wl56v-oOU2PjEv975-8cNfFisdKucxjBxeSaY_a1EPnLKcwQJ8BZJYO2aAUuuLkXj5Xsk0l1FN8esZxon98MUsg%2C%2C&sku=101408508702&do-waremd5=YnTEL_1Ddb9IQR_wNdAsVg&sponsored=1&cpa=1&nid=55581)**. Цена составит **19 740 рублей.**

**[Сибирский арсенал Микрофонная станция "Рокот-5 МС"](https://redutsb.ru/product/sibirskiyarsenal-mikrofonnaya-stanciya-rokot-5-ms/?utm_source=market&utm_medium=cpc&utm_campaign=offer-86267-feed-430826&utm_term=&utm_content=v2%7C%7C11707373951%7C%7C3026831%7C%7C%7C%7C1%7C%7Cpremium%7C%7Cnone%7C%7Csearch%7C%7C3026831%7C%7CВсе%20бренды%20с%20фида%2C%20товары%20от%205001%20до%2050000%20руб%2C%20все%20категории%20кроме%20DKC%20и%20Legrand%7C%7Cno).** Цена будет составлять **6 130 рублей.**

**[Шкаф пожарный ШПК-315 НОК, 840-625-230, эконом]().** Цена будет составлять за 1 шт. **4 612 рублей.** Цена за все составит **9 224 рубля.**

**[Извещатель пожарный ручной ИПР 513-10 электроконтактный Рубеж Rbz-055387](https://yunimag.ru/goods/733833-izveshchatel-pozharnyy-ruchnoy-ipr-513-10-elektrokontaktnyy-rubezh-rbz-055387.html?from=yadirectTovarReg&yclid=854993314147535022&utm_source=yadirect&utm_medium=cpc&utm_campaign=tovarnaya_regions&%7C81765351&utm_term=_7&utm_content=id%7C7_7%7Ccid%7C81765351%7Cgid%7C5104992323%7Caid%7C13263228862%7Cadp%7Cno%7Cpos%7Cpremium32%7Csrc%7Csearch_none%7Cdvc%7Cdesktop%7Ccoef%7C0).** Цена будет составлять за 1 шт. **341 рубль.** Цена за все составит **1 705 рублей.**

**[Оповещатель охранно-пожарный (табло) М-24 "Выход"](https://satro-paladin.com/catalog/product/254064/?yclid=855168728314995578&utm_source=eLama-yandex&utm_medium=cpc&utm_campaign=eLama+%7C+Товарная+Галерея+%7C+Все+категории+%7C+РФ&utm_content=cid%7C78849365%7Cgid%7C5041937897%7Caid%7C12837160872%7Cadp%7Cno%7Cdvc%7Cdesktop%7Cpid%7C2907382%7Crid%7C2907382%7Cdid%7C2907382%7Cpos%7Cpremium1%7Cadn%7Csearch%7Ccrid%7C0%7C&utm_term=&roistat=direct5_search_12837160872_Системы%20охранно-пожарной%20сигнализации&roistat_referrer=none&roistat_pos=premium_1).** Цена будет составлять за 1 шт. **285 рублей.** Цена за 4 шт. составит **1 140 рублей.**

**[Огнетушитель углекислотный ОУ-2 ВСЕ]().** Цена будет составлять за 1 шт. **1 329 рублей.** Цена за 12 шт. составит **15 948 рублей.**

Вывод: За готовую систему просят 151 800 рублей, наша система вышла на 133 064 рублей. Недостастки готовой системы: 1) Неизвестно, что в неё входит; 2) Как именно будет произведена работа и входит ли она в эту стоимость. Наше же решение имеет запас в 17 000 рублей, как раз на установку всего необходимого.
## Размещение охранной сигнализации
Начнем с готового решения которое нам предлагает **[Экспертный центр НОР]()**.
Цена включая работу составит **175 100 рублей**

**Рассмотрим свой вариант размещения охранной сигнализации.**
Любые виды систем охранно-пожарных сигнализаций состоят из следующих элементов:
- Извещатели (датчики);
- Приемно-контрольная аппаратура (ППК, ПКУ);
- Устройства оповещения;
- Линии связи (шлейфовые, радиоканальные, интернет, GSM—GPRS);
- Резервное автономное электропитание (аккумуляторный, бензиновый или дизельный - генератор);
- Иные периферийные устройства;
- Программное обеспечение.
-
**[Проводной магнитоконтактный датчик (геркон) двери/окна для охраной сигнализации PS-link MC35]().** Цена будет составлять за 1 шт. **106 рублей.** Цена за 41 шт. составит **4 346 рублей.**

Приемно-контрольная аппаратура куплена уже выше, но если вдруг её не будет, то её цена будет составлять **15 500 рублей**. **[Охранно-пожарный прибор Болид С2000М]()**.
Устройства оповещения куплены уже выше, но если вдруг их не будет, то цена будет составлять **33 808 рублей.** **[Соната-Т-Л-100-5/3Вт речевой оповещатель Арсенал Безопасности](https://market.yandex.ru/product--sonata-t-l-100-5-3vt-rechevoi-opoveshchatel-arsenal-bezopasnosti/992258641?cpc=hDDxPGoBpTctjx7ZyL0F7f3oh0Xv06K5JJJkAlFvdWtPvA-llpd8X8hPbd7Nzd7DEsCBIg3GKpZuHXUG6sqTvPX-REmuKuocOd2r3kB5wpXh_Rh_GAqmL7bOs5szfGCYUpNNYrnIYySlkmYeSAj8jJuETBc_D6Zk-HmZsDEDehpa6ZtmBUtwrKPkE7JrnsqyyhqS5EbLJGw%2C&sku=101359451467&offerid=exXli52QOTEeV-C8SaJoog&cpa=1).**
**[Усилитель трансляционный зональный LAudio LAM6120](https://market.yandex.ru/product--usilitel-transliatsionnyi-zonalnyi-laudio-lam6120/1408428431?text=усилитель%20трансляционный%20для%20пожарной%20сигнализации&cpc=eaZ54uG8hB8i_J_aRZQftkHGmwunOLlx3uCEWC9l1fOX3SjC_53CKgXgWYm1yPlEIoI_LyvmQaHqGLXtaKSdjlOHCIArJco3q8optMgpX8_0w-u2RmSv8JLqfxD5Zh5Wl56v-oOU2PjEv975-8cNfFisdKucxjBxeSaY_a1EPnLKcwQJ8BZJYO2aAUuuLkXj5Xsk0l1FN8esZxon98MUsg%2C%2C&sku=101408508702&do-waremd5=YnTEL_1Ddb9IQR_wNdAsVg&sponsored=1&cpa=1&nid=55581)**. Цена составит **19 740 рублей.**
**[Сибирский арсенал Микрофонная станция "Рокот-5 МС"](https://redutsb.ru/product/sibirskiyarsenal-mikrofonnaya-stanciya-rokot-5-ms/?utm_source=market&utm_medium=cpc&utm_campaign=offer-86267-feed-430826&utm_term=&utm_content=v2%7C%7C11707373951%7C%7C3026831%7C%7C%7C%7C1%7C%7Cpremium%7C%7Cnone%7C%7Csearch%7C%7C3026831%7C%7CВсе%20бренды%20с%20фида%2C%20товары%20от%205001%20до%2050000%20руб%2C%20все%20категории%20кроме%20DKC%20и%20Legrand%7C%7Cno).** Цена будет составлять **6 130 рублей.**
***[Инверторный генератор DAEWOO GDA 9400Ei (7.9кВт, 220В)](https://market.yandex.ru/product--invertornyi-generator-daewoo-gda-9400ei-7-9kvt-220v/1767927477?cpc=whH6tlSivL_XPhd_RTPzmQ8A-ZjJ1c8j1l_9k4AQVRDVzBGWRPcL-3e1APMZ6_3PbRuyw_c08i614o1n4bRyM5ZBfvk-zsWt2e8D7xVS70D0F1zp373p-LUq6AsEHGllD3s_5Qpy37V8BfLan2mYlIGlWMCcxb0hoqfPEe8WYal0swrYcULXFNdJpkTdRm-eCAWEdKmIFkl8I_8GTn958A%2C%2C&from-show-uid=16774383894865290161000002&sku=101809738472&do-waremd5=iiaCBK5AG3tddlT9kI12Mg&sponsored=1&cpa=1).** Цена будет составлять **96 990 рублей.**
Вывод: Добавились только датчики стоимостью 4 346 рублей, все остальное при установки пожарной сигнализации будет установлено.
# Освещение. Виды освещения
В зависимости от источника света производственное освещение может быть естественным, искусственным и совмещенным.
**Естественное освещение –** это освещение помещений дневным светом неба (прямым или отраженным), проникающим через световые проемы в наружных ограждающих конструкциях. Естественное освещение производственных помещений может осуществляться через окна в боковых стенах {боковое), через верхние световые проемы, фонари (верхнее) или обоими способами одновременно (комбинированное освещение). Верхнее и комбинированное естественное освещение имеет то преимущество, что обеспечивает более равномерное освещение помещений, а боковое освещение создает значительную неравномерность в освещении участков, расположенных вблизи и вдали от окон боковых стен.
**Искусственное освещение** предназначено для освещения рабочих поверхностей в темное время суток или при недостаточности естественного освещения. Создается оно искусственными источниками света (лампами накаливания или газоразрядными лампами) и подразделяется на рабочее, аварийное, охранное и дежурное. Аварийное освещение разделяется на освещение безопасности и эвакуационное. Искусственное освещение бывает общее и комбинированное.
**Общее освещение** предназначено для освещения всего помещения, оно может быть равномерным или локализованным. Общее равномерное освещение создает условия для выполнения работы в любом месте освещаемого пространства. При общем локализованном освещении светильники размещают в соответствии с расположением оборудования, что позволяет создавать большую освещенность на рабочих местах.
**Комбинированное освещение** состоит из общего и местного. Его целесообразно устраивать при работах высокой точности, а также при необходимости создания определенного или изменяемого в процессе работы направления света.
**Местное освещение** предназначено для освещения только рабочих поверхностей и не создает необходимой освещенности даже на прилегающих к ним площадях. Оно может быть стационарным и переносным. Применение только местного освещения в производственных помещениях не допускается.
**Рабочее освещение –** освещение, обеспечивающее нормируемые осветительные условия (освещенность) в помещениях и в местах производства работ вне зданий.
**Аварийное освещение** нужно предусматривать, если отключение рабочего освещения и связанное с этим нарушение обслуживания оборудования может привести к взрыву, пожару, длительному нарушению технологического процесса, нарушению работы электростанций, насосных установок водоснабжения и других подобных объектов. Наименьшая освещенность, создаваемая аварийным освещением, должна составлять 5% освещенности, нормируемой для рабочего освещения, но не менее 2 лк внутри зданий и не менее 1 лк для территории предприятий. Светильники аварийного освещения для продолжения работы присоединяют к независимому источнику питания.
**Освещение безопасности –** освещение для продолжения работы при аварийном отключении рабочего освещения.
**Эвакуационное освещение** предназначено для безопасной эвакуации людей из помещений при аварийном отключении рабочего освещения в местах, опасных для прохода людей, на лестницах. Светильники для эвакуационного освещения присоединяют к сети, независимой от рабочего освещения.
**Охранное освещение** предусматривается вдоль границ территории, охраняемых в ночное время; оно должно обеспечивать освещенность 0,5 лк на уровне земли.
**Дежурное освещение** предназначено для минимального искусственного освещения для несения дежурств охраны в нерабочее время, совпадающее с темным временем суток.
Для охранного и дежурного освещения помещений выделяют часть светильников рабочего или аварийного освещения.
В процессе эксплуатации осветительных установок необходимо предусматривать регулярную очистку от загрязнений светильников и остекленных проемов, своевременную защиту отработавших свой срок службы ламп, контроль напряжений в осветительной сети, систематический ремонт элементов осветительной установки, регулярную окраску стен и потолка, контроль освещенности на рабочих местах.
Контроль состояния осветительных установок, необходимый для поддержания требуемой освещенности на рабочих местах, проводится периодически (но не реже одного раза в год). Проверяется освещенность на рабочих местах с помощью люксметров. Сроки чистки светильников и остекления зависят от запыленности помещения: для помещений с незначительными выделениями пыли – 2 раза в год; для помещений со значительным выделением пыли – от 4 до 12 раз в год. Для удобства и безопасности очистки применяют передвижные тележки, телескопические лестницы, подвесные люльки; при высоте подвеса светильников до 5 м допускается обслуживание их с приставных лестниц и стремянок не менее чем двумя лицами. Чистка светильников должна проводиться при отключенном питании.
# Реализация на практике
7.2.4. В учебных кабинетах, аудиториях, лабораториях уровни освещенности должны соответствовать следующим нормам: на рабочих столах - 300 - 500 лк, в кабинетах технического черчения и рисования - 500 лк, в кабинетах информатики на столах - 300 - 500 лк, на классной доске 300 - 500 лк, в актовых и спортивных залах (на полу) - 200 лк, в рекреациях (на полу) - 150 лк.
Светодиодными называют осветительные приборы на основе полупроводниковых светящихся элементов, отличающихся малым потреблением электроэнергии и длительным сроком службы. LED-технология позволяет создавать светодиоды с заданными характеристиками: цветом свечения, индексом цветопередачи и другими параметрами.
Для учебных заведений подходят устройства, которые:
- имеют условный защитный угол 90 градусов и более;
- обладают габаритной яркостью, не превышающей 5000 кд/кв. м;
- укомплектованы светящимися элементами мощностью менее 0,3 Вт;
- имеют неравномерность яркости выходного отверстия Lmax:Lmin не более 5 к 1;
- выполнены на базе белых светодиодов, цветовая температура которых не превышает 4000 кельвинов.
Организация освещения в учебных заведениях строго регламентирована, а выбор устройств ограничен. Чтобы разработать и реализовать проект, способный выдержать все проверки соответствующих организаций, следует максимально точно придерживаться обязательных норм и, если есть возможность, учитывать требования документов рекомендательного характера.
После изученных норм, мой выбор был сделан в пользу светодиодных светильников. Предлагаю два варианта:
**[Светодиодный светильник 1200х300 (1195x295) 40Вт с БАП 2 часа 4000К опал IP40](https://diolum.ru/products/1200h300-40vt-opal-bap-ip40/universalnyiy-svetodiodnyiy-svetilnik-1200h300-1195x295-4000k-s-bap-2-chasa-40vt-opal-ip40?yclid=878213479238263437&utm_medium=cpc&utm_source=yandex&utm_campaign=elama%20%20DSA%20фиды%20%20Товарная%20галерея%20%20РФ%7C78465290&utm_term=&utm_content=%7Cc:78465290%7Cg:5030780182%7Cb:12772947226%7Ck:2878588%7Cst:search%7Ca:no%7Cs:none%7Ct:premium%7Cp:1%7Cr:2878588%7Cdvc:desktop).** Цена будет составлять **4 590 рублей.**
**Характеристики:**

**[Светодиодный светильник Айсберг ll 36Вт 4000К с БАП 2 часа IP65](https://diolum.ru/products/aysberg-ll-36vt-bap/svetodiodnyiy-svetilnik-aysberg-ll-36vt-4000k-s-bap-2-chasa-ip65).** Цена будет составлять **5 100 рублей.**
**Характеристики:**

**На плане, это будет выглядеть так:**

Всего на объекте потребуется использовать 56 светодиодных светильников.
Итогая сумма получается: **1) Вариант - 257 040 рублей; 2) Вариант - 285 600 рублей.** Не включая работу.
**Дополнительно наружное освещение.**
**[Уличный светодиодный светильник PS-lux-S2-30-IP67]().** Цена будет составлять **5 881 рубль.**

Всего на объекте потребуется использовать 15 уличных светодиодных светильников.
Итогая сумма получается: **88 215 рублей.** Не включая работу.
# Заключение
Таким образом, подводим итог, приходим к следующему выводу - технические средства охранной и охранно-пожарной сигнализации, предназначенные для получения информации о состоянии контролируемых параметров на охраняемом объекте, приема, преобразования, передачи, хранения, отображения этой информации в виде звуковой и световой сигнализации.
В данном проекте были рассмотрены основные приборы системы ОПС, разработана схема системы ОПС для учебного стенда по технике пожарной безопасности.
Рассмотрены существующие системы ОПС и их характеристики, а также характеристики датчиков и конструкций системы ОПС, методы монтажа и пуско-наладочных работы системы ОПС.
Разработаны меры по обеспечению безопасных условий труда и требований к эксплуатаций системы ОПС.
# Список используемой литературы
1. ;
2. ;
3. ;
4. ;
5. ;
6. ;
7. ;
8. .