В наше время видеонаблюдение стало неотъемлемой частью комплексной системы безопасности, потому что нынешние системы видеонаблюдения могут не только показывать и записывать видео, но и программировать реакцию всей системы безопасности в случае нештатных ситуаций. В зависимости от типа оснащения системы видеонаблюдения разделяют на аналоговые и цифровые. Аналоговые системы видеонаблюдения применяются, где нужно сделать систему видеонаблюдение в маленьком здании и изображение с камер записывать на видеомагнитофон. Цифровые системы видеонаблюдения, разъединяются в распределенные системы безопасности. Такие комплексы, записывают и рассматривают информацию, поступающую от камер, а также "принимают решения" по сохранности охраняемого объекта в оффлайн режиме или по подтверждению оператора системы. Цифровая система видеонаблюдения применяется в системах безопасности территориально поделённых объектов. Сегодня цифровые системы видеонаблюдения мало-помалу выталкивают с рынка аналоговые системы по функциональным и техническим качествам, а так же по своей уменьшающейся стоимости уже приближаются к стоимости аналоговых систем видеонаблюдения. Способности, характеристики и сборка системы видеонаблюдения зависят от требований заказчика. Как правило, небольшой состав такой системы включает в себя, устройства обработки видеосигналов, записывающее устройства (видеомагнитофоны, видеорегистраторы, видеорекордеры) (квадраторы, мультиплексоры и др.), видеокамеры, и устройства описания видеоинформации (видеомониторы). В большие системы видеонаблюдения монтируют дополнительные управляющие и вспомогательные устройства - клавиатуры управления видеокамерами, модуляторы, матричные коммутаторы, усилители-распределители, видеопринтеры, телеметрические приемники и датчики и другие охранные устройства.
Тип - система видеонаблюдения
Модель - KGUARD EL421-4HW212B
Количество поддерживаемых камер - 4
Количество камер в комплекте - 4
Размещение камер - в помещении, на улице
Сжатие видео - H.264
Стандарт видеосигнала - NTSC, PAL
Режимы записи - вручную, обнаружение движения, постоянный
Встроенный HDD - нет
Поддержка HDD - 1 до 2 Тб
Управление мышкой - нет
Просмотр с мобильных устройств - нет
Датчики и сигнализации - нет
Режим тревоги - есть
Резервное копирование - USB HDD (жесткий диск)
Совместимость - Windows 2000, XP, Vista и 7
Видео вход - 4 x BNC
Видео выход - 1xBNC, 1xVGA, HDMIx1
Аудио вход - 2 x Аудио входа (RCA)
Аудио выход - 1 x Аудио выход (RCA)
Сетевой интерфейс - 1 x RJ45
USB порты - 2 x USB
Вид - на шарнире
Размещение наружное
Тип съемки - цветной
Режим сьемки - авто
Стандарт видеосигнала - NTSC / PAL
Разрешение - 600 ТВЛ
Электронный затвор - 1/50~1/100,000с
Фокусное расстояние - 3.6 мм
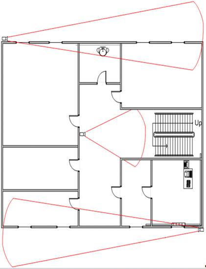
Угол обзора - 75°
Отношение сигнал/шум - 48 дБ
Баланс белого - авто
Детектор движения - есть
Защита - антивандальный кронштейн
Рабочая температура - от -25°С до +50°С
Рабочая влажность - 10% ~ 90%
Габариты - 68x58x153 мм
Вес - 0.24 кг
Комплектация - 4 камеры, блок питания для видеокамер, инструкция по эксплуатации, монтажный комплект, упаковочная коробка
Экран - Макс. частота обновления, Гц 60
Изогнутый экран - Нет
Яркость, кд/м2 - 250
Контрастность - 1000:1
Соотношение сторон - 4:3
Время отклика, мс - 5
Углы обзора (Г/В) - 170°/170°
Диагональ экрана, дюймы - 17
Разрешение - 1920×1080 Full HD
Назначение монитора - Для дома и офиса
Разъёмы монитора - HDMI, VGA (D-SUB), 3.5 мм, USB Type A
Установка монитора - На подставку
Число портов HDMI - 1
Конструктивные особенности - USB-хаб
Количество USB портов - 1
Тип - Монитор
Бренд - CARCAM
Цвет - Черный
Потребляемая мощность, Вт - 20
Вес, кг - 2.5
Гарантийный срок - 365 дней
Страна-изготовитель - Китай
Гарантия от производителя - 36 мес.
Страна-производитель - Таиланд
Тип - жесткий диск
Модель - Seagate SkyHawk
Код производителя - [ST1000VX005]
Назначение - видеосистемы
Объем HDD - 1 ТБ
Объем кэш-памяти - 64 МБ
Скорость вращения шпинделя - 5900 об/мин
Максимальная скорость передачи данных - 180 Мбайт/сек
Среднее время задержки (Latency) - 5.1 мс
Интерфейс - SATA III
Пропускная способность интерфейса - 6 Гбит/с
Оптимизация под RAID-массивы - нет
Технология записи - CMR
Ударостойкость при работе - 80 G
Уровень шума во время работы - 22 дБ
Уровень шума в простое - 19 дБ
С гелиевым наполнением - нет
Максимальное энергопотребление - 5.6 Вт
Энергопотребление в режиме ожидания - 4 Вт
Максимальная рабочая температура - 70 °C
Ширина- 101.85 мм
Длина - 147 мм
Толщина - 20.2 мм
Для того чтобы безопасность стала еще доступнее, многие частные компании создают небольшие и дешевые комплекты систем видеонаблюдения, использование которых без особого труда может быть сделана своими руками. Для установки системы домовладельцу не нужно наличие специальных инструментов, а также специальных знаний. Эти комплекты состоят из всех необходимых для работы деталей и прекрасно годятся для решения стандартных задач небольшого и среднего бизнеса, а также для установки на даче, в квартире или в загородном доме.