# Лабораторная работа №1
## Описание системы видеонаблюдения для детского сада
### Введение
За основу описания, я взял детский сад опытно-станционный "МБОУ Замишевская СОШ" который находится не в городе, а в сельской местности. С одной стороны, можно предположить, что такой объект будет более безопасен, так как находится далеко от города и численность людей будет не большая, но по-моему мнению, это не так. Такие детские сады, как правило мало оборудованы и менее защищены, поэтому они являются более легкой целью для злоумышленников и террористических групп. Целью моей работы заключается составить такую систему видеонаблюдения, которая будет по соотношению цены и качества самой эффективной.
### I этап. Изучить план объекта (Детского сада).
Данное здание имеент два этажа, поделенное на школьников и детей, хочу сделать весомую пометку, что возвраст детей очень разный, поэтому проведения инструктажа о правилах поведения в экстренных ситуациях, не принесёт особой пользы, ведь детям которым 3 года понять как вести себя будет тяжеловато. По мимо этого большое количество входов и выходов (если точнее, то основных 4 и два которые не исользуются, всего 6). Ещё прошу заметить, что он находится в 100-200 метрах от домов и окружен деревьями (зимой особых проблем не будет заметить обычному прохожу, что-то подозрительное, а вот уже летом, это может оказать большие проблемы).
**Рассмотрим подробно план здание, сначала первого этажа.**



Для простоты распишем все, что видим на плане.
1) Сан.узел М/Ж отведено 2 спец комнаты;
2) Раздевалка для школьников 2 шт, находится грубо говоря в коридоре;
3) Столовая с выходом на улицу для принятие продуктов питания;
4) Спортзал;
5) Два кабинета, где находятся ученики;
6) 3 главных входа, но через боковые входы заходят школьники, центральный используется для детей с детского сада;
7) Основной коридор.
В итоге нас интересует 6 помещений, 4 коридора, 3 входа, 1 выход.
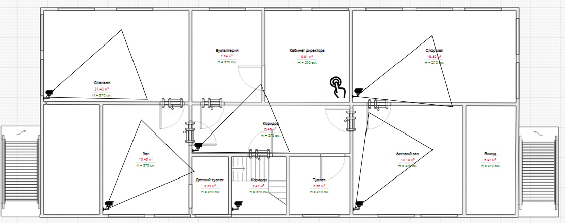
**Рассмотрим подробно план здания второго этажа.**


План:
1) 2 сан.узла (Детский и для работников);
2) Помещения, где большое скопление детей: спальня, зал, спортзал, актовый зал, раздевалка;
3) Помещения для персонала: кабинет директора, бухгалтерия;
4) Общий коридор, коридор, где лестница.
В итоге нас интересует 9 помещений, 2 коридора, 1 вход, 2 выхода.
### II. Выбор система видеонаблюдения.
На этом этапе нам предстоит определить и понять, какая система видеонаблюдения подойдет нам больше. Обратимся к ресурсам интернета!
[ТОП-6 Лучших Систем Видеонаблюдения - Рейтинг 2023 года]()
[ТОП-10 камер видеонаблюдения 2023 года]()
> На этих сайтах вы найдете видео, характеристики камер, которые не вошли в нашу систему видеонаблюдения, вы можете изучить их самостоятельно.
После изучения материала, было решино, сделать два варианта системы видеонаблюдения. Назовём их условно **по ДОРОЖЕ** и **по ДЕШЕВЛЕ**, все будет зависить от наших материальных возможностей.
Начнем с системы видеонаблюдения по ДОРОЖЕ выбор был сделан в пользу **ISON ALFA**. Не много о возможностях:
**Описание:**
Готовая IP система видеонаблюдения с питанием POE. Комплект видеонаблюдения ISON ALFA на 7 камер производит запись в формате высокой четкости 5 мегапикселей, а также имеет удобную функцию передачи питания и видеосигнала по одному кабелю POE, данная функция значительно упростит монтаж и настройку системы. Система видеонаблюдения ISON ALFA на 7 камер имеет функцию удаленного просмотра со смартфона. Система имеет встроенный POE коммутатор, поддержку 3g/4g, встроенные датчики движения, высококачественную матрицу SONY (ОРИГИНАЛ). IP система видеонаблюдения с POE ISON ALFA включает в себя IP камеры с POE питанием, кабель для видеонаблюдения витая пара с разъемами, видеорегистратор со встроенными POE портами. Готовую IP систему видеонаблюдения ISON ALFA на 7 камер с POE легко подключить и настроить самостоятельно. Если вы хотите заменить стандартные 18-метровые бухты кабеля на более длинные либо либо регистратор под расширение выберите нужную вам замену в конфигураторе возле кнопки купить. Опционально к данной системе видеонаблюдения вы можете добавить 1 или несколько микрофонов для записи звука (микрофоны подключаются напрямую к камере), жёсткий диск (для записи видео), источник бесперебойного питания (для защиты вашей системы от перепадов напряжения и для работы системы при отключении электроэнергии) и основания для крепления камер (для герметизации разъёмов при уличном монтаже). Оформить заказ на данный комплект видеонаблюдения вы можете добавив его в корзину. Доставка при заказе от 15 000р бесплатная в любой город РФ.

**Видео обзоры системы видеонаблюдения ISON ALFA:**
1.
2.
**Пример записи:**
**Состав комплекта:**
- IP Видеорегистратор со встроенным POE на 7 камер ISON-NVR08POE;
- 7 уличных IP камера 5 мегапикселей ISON IP50S-R 5MP;
- 7 комплектов дюбелей для крепления камер;
- Мышь для управления видеорегистратором;
- Блок питания для регистратора;
- 1 самоклеящаяся уличная табличка 250х150 ПВХ ведётся видеонаблюдение ISON;
- 7 готовых бухт кабеля по 18 метров витая пара CAT медный для систем видеонаблюдения POE с готовыми разъёмами;
- Крепление для жесткого диска;
- Шестигранник для регулировки угла наклона и поворота камер;
- Разметка для крепежа камер;
- Защитные колпачки для соединительных разъемов камер;
- Инструкция по монтажу на русском языке;
- Гарантийный талон.
- Скачать программное обеспечение.
**Характеристики камеры видеонаблюдения ISON IP50S-R 5MP:**
- Камера цветная, уличная;
- Камера имеет высококачественную матрицу Sony (Оригинал);
- Разрешение записи 2К 1440p;
- Камера имеет технологию WDR которая решают проблему плохого или неправильного освещения, а также проблему завета кадра;
- Камера универсальная, подходит для использования как внутри помещения так и снаружи;
- Камера имеет технологию Starlight-PRO , которая улучшает качество ночной съёмки и расширяет охват съёмки;
- Телевизионная система PAL/NTSC;
- Светочувствительность 0,01 Люкс;
- Соотношение сигнал/шум >52дБ;
- Фиксированный широкоугольный объектив 2,8 мм;
- Ночная ИК подсветка 30 метров LED 42µ x 2шт;
- Угол обзора по горизонтали 120°;
- Угол обзора по вертикали 53°;
- Камера производит запись 30 кадров в секунду Fps Real Time(Объекты в движении не размываются);
- Технология автозапуска ISON-GO (Не сбрасываются настройки при отключении электроэнергии);
- Класс защиты IP66 обеспечивает работу камеры в любой дождь без запотевания линз;
- Подстраивается под любую скорость интернета;
- Бесплатное программное обеспечение для удаленного просмотра;
- Умная энергосберегающая система обогрева;
- Улучшенная ночная ИК LED3.0 подсветка. На 300% лучше качество съёмки ночью.
- Долговечность до 10 лет.
- Высокая светочувствительность Ozzy-IS ;
- Наличие сетевых протоколов IPv4, HTTP, TCP/IP, FTP, NTP, RTSP, UDP, SMTP, DNS, DDNS;
- Матрица камеры 1/2,8″ Sony Starvis (Оригинал) IMX335;
- Рабочий процессор FH8856;
- Поддержка протокола ONVIF 2.4;
- Наличие встроенного детектора движения;
- Наличие функции приватной зоны 3;
- Наличие функции оповещения о тревожных событиях FTP, SMTP;
- Поддержка облачных сервисов;
- Наличие функции P2P;
- Записи по потокам 2560х1440@30 к/с, 2304х1296@30 к/с, 1920х1080@30 к/с;
- Дополнительный поток 720*480@30 к/с, 640х480@20 к/с, 352*288@25fps;
- Форматы сжатия H.264/H.265/JPEG/AVI/MJPEG;
- Наличие регулировок изображения насыщенности, яркости, контрастности, четкости;
- Наличие регулировок режимов «День/Ночь»;
- Наличие входа под микрофон. (Если вам требуется микрофон добавьте его к вашему заказу перейдя по ссылке);
- Легко подключить камеру за 5 минут, также легко настроить просмотр на вашем мобильном телефоне за 3 минуты;
- Можно просматривать с телефона, планшета или компьютера находясь в любой точке земного шара;
- Поддерживает все виды Российского интернета;
- Наличие собственного бесплатного облачного сервиса;
- Не требует статического IP адреса;
- Поддерживает 3g/4g модемы;
- Высокое качество сборки и видео;
- Поддержка SD карт: не предусмотрено;
- Поддерживает RTSP поток, возможность записи в облако, запись на удаленный регистратор или сервер;
- Возможность скачивания архива дистанционно через интернет;
- Наличие технологии передачи питания по одному кабелю POE;
- Корпус камеры металлический, антивандальный;
- Класс графического процессора: U-47-PRO
- Технология ISON-DIA;
- Класс энергоёмкости 89CF;
- Ядро: 24ISQ;
- Камера имеет технологию 3D NR улучшающую качество ночной съемки за счет снижения шумов и помех;
- Прямой поток: UGT-2
- Режим синхронизации ISON TURBO-S40;
- Множитель класса express;
- Рабочая температура от -60° до +55°;
- Питание камеры POE, 12В, 900mА;
- Размер корпуса 157 x 70 х 66 мм;
- В комплекте с каждой камерой инструкция по монтажу, паспорт изделия, гарантийный талон, метизы, разметка, защитный колпачок.
- Скачать программное обеспечение.
- Гарантия ISON 3 года.
**Характеристики видеорегистратора ISON-NVR08POE:**
- 8-канальный русифицированный IP видеорегистратор (8 каналов POE);
- Поддерживает 8 ip камер разрешением до 8 мегапикселей;
- Технология автозапуска ISON-GO (Не сбрасываются настройки при отключении электроэнергии);
- Совместим со всеми IP камерами ISON;
- Поддерживает камеры со встроенным микрофоном;
- Поддерживает камеры видеонаблюдения с зумом;
- Поддерживает поворотные PTZ камеры;
- Поддержка камер с датчиками движения;
- Поддерживает работу с 3g/4g модемами (для подключения необходим маршрутизатор);
- Поддерживает все виды Российского интернета;
- Процессор регистратор ARM Cortex A7 Quad-core Processor;
- Операционная система Embedded LINUX;
- Ширина канала 80Mb;
- Функция автоматической перезаписи HDD (При заполнении жёсткого диска запись не останавливается, перезапись начинается автоматически);
- Поддержка разрешений 3840×2160, 2590×1944, 2048×1536, 1920×1080, 1280×960, 1280×720 и т.д;
- Наличие видео выхода 1 VGA, 1 HDMI;
- Аудио битрейт 64 Кбит;
- Стандарт аудио сжатия G.711;
- Поддержка камер с датчиками движения;
- Наличие функции отправки e-mail сообщений в случае сработки датчика движения;
- Запись архива до 180 дней (с максимальным жестким диском);
- VGA выход 1920×1080/1280×1024/1280×720;
- HDMI выход;
- Встроенный программный зум;
- Процессор нового поколения CORTEX PRO;
- Поддержка управляемых поворотных камер, камер с зумом PTZ;
- Поддержка кодеков H264/H265;
- Подстраивается под любую скорость интернета;
- Бесплатное программное обеспечение для удаленного просмотра;
- Разрешение записи, 4k(3840×2160),5MP(2592×1944),4MP(2688×1520/2560×1440),3MP(2048×1536), 1080P(1920×1080),960P(1280×960),720P(1280×720),D1 (720×576/720×480);
- Частота записи PAL: 4K@10x25fps,5MP@16×25fp,4MP@16x25fp,3MP@16×25fp,1080P@16×25fp, 960P@16×25fp,720P@16×25fp, D1@16×25fp
NTSC: 4K@10x30fps,5MP@16×30fp,4MP@16×30fp,3MP@16×30fp,1080P@16×30fp, 960P@16×30fp, 720P@16×30fp, D1@16×30fp;
- Класс графического процессора: P-12
- Режим синхронизации ISON TURBO;
- Тип матрицы: PFE-PREMIUM;
- Технология ISON-DIA;
- Интеллектуальная кабельная сеть;
- Класс энергоёмкости 89HD;
- Ядро: 15ISQ;
- Прямой поток: UGT
- Множитель класса express;
- Возможность копирования данных USB;
- Сетевой интерфейс 9 RJ45 10M/100M Ethernet;
- POE выходы 8 (выходная мощность — не более 15.4 Вт на канал);
- Технология POE EXTENDED, Дальность передачи сигнала до 200м (При использовании кабеля ISON);
- Наличие сетевых функций HTTP, TCP/IP, IPv4, UPNP, RTSP, UDP, SMTP, NTP, DHCP, DNS, DDNS, FTP, IP Search, P2P;
- Наличие протокола Onvif 2.4;
- WEB поддержка IE8-11, Google Chrome (IE Tab), Firefox (IE Tab);
- CMS поддержка Windows 10 / Windows Vista / Windows 7/ Windows 8;
- Наличие собственного бесплатного облачного сервиса;
- Наличие функции удаленного просмотра со смартфона iPhone, iPad, Android, Android PAD;
- Поддержка 1 жесткого диска до 8ТБ, форм-фактор 3,5″, разъем SATA;
- Наличие 2 USB портов 2.0;
- Блок питания регистратора 52 В / 2.5А;
- Рабочая температура -10~55℃/10~90%;
- В комплекте краткая инструкция, мышь управления, блок питания, крепеж для жесткого диска.
- Размеры (Д х Ш х В) 260*215*43(mm);
- Вес: 2кг (Без жесткого диска);
- Скачать программное обеспечение.
- Гарантия ISON 3 года.
[Ссылка, где можно заказать](https://isoncom.ru/category/videonablyudenie/gotovye-komplekty/page/2/?filter_lineika=291)
Теперь рассмотрим систему по ДЕШЕВЛЕ Falcon Eye FE-1108MHD Smart 8.4:
**Характеристики камеры:**
- Брэнд: FALCON EYE;
- Модель: FE-1108MHD Smart 8.4;
- Количество камер в комплекте: 4;
- Тип видеокамер: аналоговая;
- Разрешение камеры: 1 Мп;
- Размер матрицы: 1/4";
- Тип матрицы: CMOS;
- Фокусное расстояние: 3.6 мм;
- ИК подсветка: есть;
- Дистанция ночной съемки: 25 м;
**Характеристики видеорегистратора:**
- Тип видеорегистратора: HVR(гибридный);
- Количество каналов записи: 8;
- Форматы сжатия видео: H.264+/H.264;
- Стандарты видеосигнала: PAL/NTSC
- Отношение сигнал/шум: 41 дБ
- Разрешение по горизонтали: 960;
- Разрешение по вертикали: 1080;
- Скорость записи: 15 кад/сек;
- Особенности записи: Ручная, по тревоге, по детекции, по расписанию 2CH локально: пересечение линии, вторжение;
**Характеристики HDD**
- Количество слотов для HDD: 1;
- Форм фактор HDD: 3.5";
- Поддержка интерфейса SATA I: есть;
- Максимальная емкость HDD: 8 ТБ;
- Количество установленных HDD: не установлены;
**Интерфейсы**
- Разъемы BNC (вход): 8;
- Разъемы BNC (выход): 1;
- Разъемы VGA: 1;
- Разъемы HDMI: 1;
- Разъемы RJ-45 (Ethernet: 1;
- Аудиовходы (RCA): 1;
- Аудиовыходы (RCA): 1;
- Разъемы USB 2.0: 2;
- Интерфейс USB: есть;
-
**Особенности**
- Сетевые протоколы: HTTPS,HTTP,TCP/IP,IPv4,UPnP,Onvif2.6,RTSP,RTCP,UDP,SMTP,SNMP,Multicast,IGMP,NTP,DHCP,DNS,DDNS, FTP, P2P;
- Хранение данных в облаке: есть;
- Детектор движения: есть;
- Влагозащищенная конструкция: есть;
- Возможность управление мышью: есть;
- Мышь в комплекте: есть;
- Просмотр с мобильных устройств: есть;
**Габариты**
- Размеры видеорегистратора: 230 х 45 х 250 мм;
- Размеры камеры: 68 х 57 х 152 мм;
- Габариты упаковки (ед) ДхШхВ: 0.45x0.19x0.29 м;
- Вес упаковки (ед): 5.133 кг;
**Дополнительные характеристики**
- Гарантия: 12 мес.
Производитель оставляет за собой право изменять характеристики товара, его внешний вид и комплектность без предварительного уведомления продавца.
### III. Внедрение системы видеонаблюдения в детский сад
Вернемся к нашему плану и подумаем какие зоны надо обезопасить на нашем объекте. Рассмотрим сначала вариант по ДОРОЖЕ на плане здания первого этажа.

Камеры были расставлены по приоритету, где находятся школьники и, где входы и выходы с объекта.
Цена этого решения будет составлять 112 950 тыс. рублей. [Купить](https://isoncom.ru/magazin/videonablyudenie/gotovye-komplekty/ip-sistema-4megapixely-alfa-6-2/)
Жесткий диск для записи данных.
Цена этого решения будет составлять 2990 руб.тыс [Купить]()
Дополнительно было предложил, поставить на окна решетки, объясняя это тем, что злоумышленники могут зайти через окна, так как первый этаж. Прикреплен план размещения решеток.

Цена этого решения будет составлять 1000 рублей за квадратный метр - за 9 окон выйдет ориентировочно 10000-15000 тыс. рублей, [Купить]()
По мимо всего этого нужно поставить щеколды на двери, если злоумышленников не остановят железные входные двери, у школьников будет время спрятаться и забаррикадироваться до приезда полиции.

Цена данного решения будет составлять 194 рубля за штуку, всего за 4 шт. - 776 рублей. [Купить]()
И последнее нововведение которое хотелось бы сделать тревожную кнопку, в кабинете директора, для быстрого вызова полиции и скорой помощи.

Цена данного решения будет составлять 2490 тыс. рублей. [Купить]()
В итоге, мы имеем сумму за первый этаж **133 000 тыс. рублей**, но надо понимать, что это только оборудование, установка всего этого будет стоить отдельную плату.
Теперь рассмотрим вариант **по ДЕШЕВЛЕ** на плане второго этажа.
Камеры были расставлены по приоритету, где находятся дети и, где входы и выходы с объекта.

Цена такого решения будет составлять 32 714 тыс.рублей. Сделаю помарку эта сумма за 2 комплекта видеосистемы в которую входит 8 камер. [Купить]()
Жесткий диск для записи данных.
Цена этого решения будет составлять 2990 руб.тыс [Купить]
В этом случае нам решетки будут уже не нужны поэтому мы откажемся от этого решения. Но нужно поставить щеколды на двери, если злоумышленников целенаправлено пойдут на второй этаж и их не остановят железные входные двери, у детей будет время спрятаться и забаррикадироваться до приезда полиции.

Цена такого решения будет составлять 194 рубля за штуку, всего за 6 шт. - 1176 рублей. [Купить]()
По мимо всего этого, хотелось бы сделать тревожную кнопку, в кабинете директора, для быстрого вызова полиции и скорой помощи.

Цена данного решения будет составлять 2490 тыс. рублей. [Купить]()
Последнее, что надо оставить не без внимания это проход на второй этаж, который спрятан за деревянные двери с обоих сторон, если злоумышленник будет подготовлен, то нам необходимо обезопасить и их. Для этого предлагается убрать двери и заделать их кирпичной кладкой. Мне не удалось найти точную цену, но средняя цена на такой вид услуг будет составлять 30000 рублей вместе с работой.
В итоге, мы имеем сумму за второй этаж **68 000 тыс. рублей**, это куда меньше чем впервом варианте и это действительно может спасти много жизней.
### IV. Внешняя безопасность детского сада!
Предлагаю уйти от внутренней безопасноти объекта и обратить внимания на внешнюю защиту. Во-первых из-за нахождения нашего защищаемого объекта в далеко от города, а точнее в 7 км и 11 минутах езды, за это время может случится многое, до приезда помощи.

Поэтому нам нужна защита не только внутренней безопасности здания, но и внешняя.
Изучим планировку и обстановку вокруг нашего объекта. Здесь мы видим плачевную ситуацию для нас, хлипкий забор, ворота, никого стеклапакета на окна. Ещё к тому же 3 входа на территорию, один главный который мы видим, второй находится слева для заезда, и последний справа.

Для внешней территории я выбрал камеры ISON ALFA в количестве 6 штук.
Цена этого решения будет составляет 112 950 тыс.руб [Купить]()
Жесткий диск для записи данных.
Цена этого решения будет составлять 2990 руб.тыс [Купить]()
План расположения камер.

В нашем случае мало вариантов, но можно обезопасить себя довольно смешно и просто, хотя бы с нескольких сторон. Центральный вход мы оставляем без изменений красивым и ухоженным, а вот остальные мы защитим от посторонних, насколько мне известно остальные два входа на территорию завалены деревьями и не использются, у проверок вопроса не возникает, значит почему бы не сделать это по всему периметру. Звучит глупо, но детский сад по своему расположению находится удаленно от домов и вокруг него лес. Прикрепляю с гугл карты расположение на котором мы видем, что это так, дома и дороги являются практически заброшенными и в силу того, что вокруг лес это не будет бросаться в глаза никому.

Итак, в итоге мы не потратив ничего обезопасили периметр с 3 сторон, да кто-то может сказать своеобразно, но это лучший природный вариант, хруст палок под ногами лучшая сигнализация, если дети на прогулки а кто то лезет, а если у администрации будут вопросы, то это не вина детского сада, просто за забором много старых деревьев, которые сотрудники детского сада не в силах убрать, но будет реалистами я живу там порядка 10 лет и пока ни разу не видел, чтобы за территорией убирали так повально их, чуть подчистят и все.
По мимо этого можно попробывать просто акультурить территорию, можно обратить внимание, что вокруг детского сада стоят большие густые деревья, но забор выделяется, почему бы не пустить по нему красивую вьющуюся пароду растения которое будет красиво изнутри: берёзку, хмель, плющ, а вот снаружи забора вывести вьющееся колючение растение, тем самым внутри для детей безопасно, а снаружи для злоумышленника вызовет проблему.
### Заключение
В заключение хотелось бы сказать, в наше время за частвую стали происходить случии проникновения злоумышленников и террористов в школы и так далее. Поэтому обезопасить себя и других не обходимо, хотя бы сделать минимально для того, чтобы как минимум случайный нарушитель не мог попасть на объект, для этого можно предпринять, даже минимальные меры защиты те же самые щеколды на двери которые стоят копейки, но они смогут задержать на некоторое время, до приезда полиции или прибытию подмоги среди населения. Благодаря этой статье, мы разобрались как и какими средствами необходимо защищать, даже такие маленькие и находящиеся в глубинки детские сады и жизни детей.
## Список используемой литературы:
1. ;
2. ;
3. ;
4. ;
5. ;
6. ;
7. ;
8. ;
9. ;
10. .